A Larger Vision. A Greater Impact.
New Building Renovation Project
What is the project?
God did an amazing work in 2023 for Houston Chinese Church (HCC) by allowing us to purchase 10 acres of land and the 128,000 SF office building next door (~2.5x bigger than HCC today). Our new building renovation project will convert this office space into a church facility that enables us to expand our ministries to serve and bless all who come to HCC as well as the community around us.
Our vision and prayer is for God to utilize this new facility so that many more in Houston will hear the gospel and become God-loving and compassionate followers of Jesus Christ. "We invite you to explore more below and learn how you can be a part of this exciting project!
Project Updates
Stay updated with our progress
- [2026] Sep 2025 - Jun 2026
- Construction Document (CD) new dates
- [2025] Milestones
- September–December – The Construction Document (CD) phase commenced in September and is expected to conclude in March 2026.
- September 7 – General Member Meeting (GMM) vote to include the 2nd-floor children’s space in Phase 1 passed with 92% approval (360 votes: 303 for, 28 against, 29 abstained).
- August 9 – Council approved moving the 2nd-floor children’s space remodel from Phase 3 into Phase 1.
- April–July – The Design Development (DD) phase ran from April through July.
- July 30 – The City officially disclaimed Old Main Street along the east side of HCC’s property.
- July 28 – The City assigned a new address to HCC’s future property: 3050 W Bellfort Ave.
- July 7 – Second all-committee leaders meeting: Reviewed SD estimates and agreed to proceed with Phase 1 only.
- May 18 – General Member Meeting (GMM) vote to authorize selling the current HCC property for fundraising passed with 92% approval (354 votes: 317 for, 26 against, 11 abstained).
- April 1 – “Next Step” meeting held with the Executive Team and all committee leaders to assess progress and outline next steps for the renovation project.
- February 28 – The building renovation fundraising campaign ended, raising a total of $4.4 million.
- January 11 – At the Council meeting, a motion passed to allocate the $200K surplus from the 2024 HCC General Fund to the HCC Building Fund.
- [2025] October
-
- Design Development (Updated October 2025)
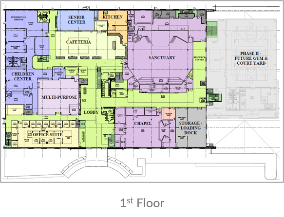
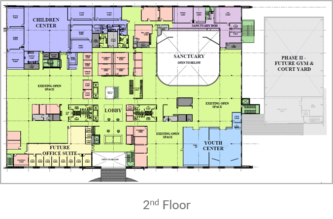
- Phase 1 – Floor Plans
- Phase 1 – Rendering (In Progress; Subject to Change)
- Accomplishments to Date (Updated October 2025)
- Current Project Stage
- Phase 1 Fundraising Target
Project Updates
- Refer to “04 HCC Building Project Updates Oct2024 to Oct2025”
- [2025] August
- HCC membership voted on August 31, 2025 to approve the inclusion of the children’s ministry space originally scheduled for the phase 3 construction into the Phase 1 construction.
- [2025] May
- HCC membership voted on May 18, 2025 to approve the marketing of the Houston Chinese Church property for sale to support the new building renovation project.
- [2024] October - December
- October–December – The Schematic Design (SD) phase began in October and concluded in December.
- November 23 – HCC Fundraising Leadership Conference convened with 80 attendees, engaging church leaders ahead of the broader congregation.
- October 25 – HCC leadership teams, building project committees, and end-users met with design firm Kirksey at their office to select the overall renovation style.
- [2024] August - September
- 8/10: Council approved BC&TC recommendation of the design firm and the design fee budget.
- 9/12: Received the city's signed release of restriction on HCC land bought from the city in 2012.
- 9/15: Fundraising campaign kickoff in all three congregations.
- [2024] June - July
The Project
- BC&TC sent RFP & RFQ to Design Firms and GCs
- BC&TC to perform design firm and GC interview and research
- BC&TC to present to Council the recommended design firm and GC
- Council to approve the design firm and GC
- Sign contract with the selected design firm and GC
Fundraising:
- Fundraising planning and preparation
- Reaching external sources
- Internal fundraising campaign to start in September 2024
- [2024] Jan - May
The Project:
- 01/2024: Master plan & phasing received
- 02/2024: Council approved master plan & phasing (94.4% passing)
- 03/2024: Cost estimates received
- 03/2024 – 05/2024: Master plan and cost estimate presentations
- 05/2024: General Members voted and approved master plan & phasing (89.3% passing)
Fundraising:
- Initial HCC building fund and capital reserve fund of total $2.7MM
And they came and worked on the house of the Lord of hosts, their God."
Vision and Journey of Grace
-
Vision
To be an urban Chinese-heritage church that reaches all those in our lives, Chinese or otherwise, in central Houston through equipping, sending, and church planting. -
異象
成為一個城市的華裔教會,透過裝備,差派和植堂在休斯頓市中心地區接觸所有我們生活中的人群,不論是中國人或是其他族裔。
according to the power at work within us, to him be glory in the church and in
Christ Jesus throughout all generations, forever and ever. Amen."
What Are Our Leaders Saying?
Jason Tarn Lead English Pastor The goal of this building project is to create a sacred shared space between our three congregations that serves as a training center to equip more disciples; as a launching pad to send out members to greater kingdom work; and as a nesting ground for future church plants birthed among us.
Thomas Wang Lead Chinese Pastor 把福音廣傳醫療中心,大學城,和教會周遭的社區需要全教會的參與和禱告,不但要有福音工作的推展,也需要相應的場地空間,使教會的福音工作可以永續。所以新大樓的改建勢在必行,大家應當慷慨奉獻,積極禱告,使新大樓儘早改建落成,讓教會的各樣事工有新的開始。
Henry Ow English Pastor Whenever we give of our resources to the work of God’s kingdom, we are making an investment. By giving to the building project, one is making an investment in a place where God’s work will happen - people coming to faith in Christ or equipping believers to grow in their love of God. We may not see the eventual return of that investment now. But we trust that whatever is sown, God will water and make grow.
Joseph Cheng Chinese Pastor 神在教會即將邁入50年之際,帶領曉士頓中國教會的中、英、粵三堂建立了共同的目標和願景。更超乎意料的,在2023年讓教會買下多年夢寐以求的十畝土地與新大樓。教堂空間的更新擴建, 展現了教會對福音使命的熱情和生命力,也象徵教會邁向一個嶄新的階段。在這人口倍增的醫療中心,神透過新的規劃與設計,拓展我們的福音使命和社區服務,不僅僅在華人社群,更深入到每一個族裔。使主耶穌的聖名,繼續被高舉,得榮耀。
Video Testimonies and Vision
-
New Building Walkthrough
-
HCC Building History with Elder Yip's Testimony
-
HCC Vision from the Leadership and Current Facility Needs
your good works and give glory to your Father who is in heaven."
Donate Now or Faith Pledge
There are many ways to contribute and take part in our project. Join us.
By Check
Make check payable to Houston Chinese ChurchMail your check to 10305 Main Street Houston, TX 77025
Write on memo line:
- Your HCC Offering Code # and
- "HCC Building Fund" or
- "HCC Pledge" for pledge fulfillment
- "HCC Renov Pledge" for pledge fulfillment for new renovations pledge
Online Giving (PayPal Giving Fund – PPGF)
Please use:- ".22" for HCC Building Fund | example "$1000.22"
- ".25" for HCC Pledge Fulfillment | example "$1000.25"
- ".27" for HCC Renov Pledge Fulfillment | example "$1000.27"
- ".30" for 2nd Floor Children’s Center | example “$1000.30"
Give Online - PPGF
NOT the "Donate with PayPal" link
Make a Faith Pledge
To make a payment in fulfillment of your new pledge towards the renovations:Start Faith Pledge
Ways to Take Part
in order that in everything God may be glorified through Jesus Christ"






